パラマウントベッドだから、安心
-
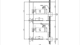
施設設計支援で
設置後の視覚化サポートベッドを中心に医療機器や設備を実際の空間にレイアウトし、臨床現場をシミュレートしてみることで、理想的なケア環境の創造に向けたサポートをしています。
新築・改築の際には是非ご相談ください。
-
ICUでの使いやすさにこだわった機能
早期リハビリテーションのサポートや、看護業務のワークフローの改善にお役立てできる製品を取り揃えています。
ベッドを導入については、販売だけでなくレンタルでの提供も可能です。
-

製品・サービスラインナップ
ベッド・ストレッチャー
設備・備品
周産期・新生児・小児向け製品

パラマウントベッドのショールームで製品に触れてみませんか?
ショールームでベッドや設備・備品などのクリティカルケア用品を実際にお確かめいただくことが出来ます。
スタッフが詳しくご説明いたしますので、実際に見て触れながら、自施設での利用イメージを持ちませんか?
ご提案の流れ
-
STEP 01
- ご要望と実態の把握
- ・ 将来のイメージ・コンセプトの共有
- ・ 既存施設における課題抽出
- ・ 職員様へのヒアリング

-
STEP 02
- 図面や3Dでの検証
- ・ 平面図および3Dイメージ図の作成
- ・ 再検証およびレイアウト修正


-
STEP 03
- 空間シュミレーション
- ・ メディカルデザインスタジオ空間シュミレーション
- ・ 他病院見学

-
STEP 04
- 実現に向けた打合せ
- ・ 設計会社/施工会社との打ち合わせ


パラマウントベッドのショールームで製品に触れてみませんか?
ショールームでベッドや設備・備品などのクリティカルケア用品を実際にお確かめいただくことが出来ます。
スタッフが詳しくご説明いたしますので、実際に見て触れながら、自施設での利用イメージを持ちませんか?

パラマウントベッドのショールームで製品に触れてみませんか?
ショールームでベッドや設備・備品などのクリティカルケア用品を実際にお確かめいただくことが出来ます。
スタッフが詳しくご説明いたしますので、実際に見て触れながら、自施設での利用イメージを持ちませんか?




